800 Claytor Square , Blacksburg, VA 24060
800 Claytor Square , Blacksburg, VA 24060
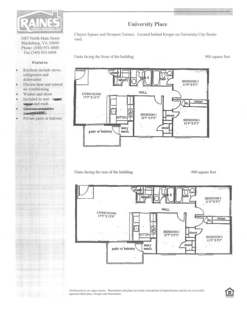
Blacksburg, 3 BR / 2 bath BA, Available late July 2026
Welcome to BLACKSBURG, where convenience meets comfort! This 3 bedroom, 2 bathroom condo in Blacksburg is available for the fall term. Enjoy the ease of having a washer/dryer in-unit, as well as central heating and cooling for year-round comfort. Located within easy walking distance to bus stops, grocery stores, Starbucks, and a variety of restaurants including Macadoos, this condo is perfect for those looking for a convenient lifestyle. Plus, being close to the Va Tech campus makes commuting a breeze. Don't miss out on this opportunity to live in the heart of Blacksburg!
Contact Chris for Information
540.230.1894
FOR RENT BY BROKER.
or visit nrvpropertymanagement.com
Contact Chris for Information
540.230.1894
FOR RENT BY BROKER.
or visit nrvpropertymanagement.com
Contact us:














